Porzione di bifamiliare in vendita

Carpi, Via Sott'Argine Motta - Cortile
€ 298.000
4 locali 4 locali
170 Mq 170 Mq
2 bagni 2 bagni

Porzione di bifamiliare in vendita

Carpi, Via Sott'Argine Motta - Cortile

Descrizione annuncio

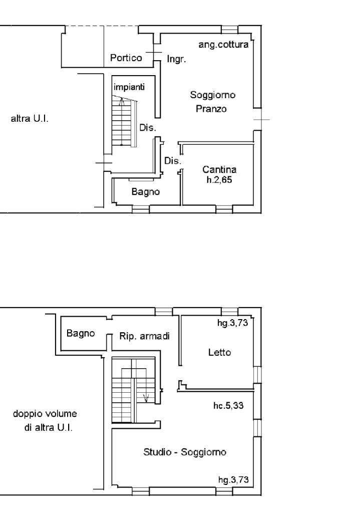
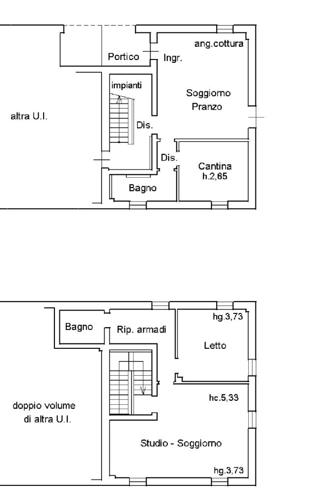
CORTILE DI CARPI - Villa semindipendente di nuovissima costruzione con circa 3250 mq. di area esterna.

Disposta su due livelli, si compone di ingresso in luminoso soggiorno, angolo cucina, un bagno ed una camera/studio.

Al primo piano abbiamo due camere, un secondo bagno con antibagno e zona armadi.

Particolarmente suggestivo è il tetto, leggermente mansardato, con travatura a vista.

Un secondo edificio, ora ricovero attrezzi, può essere convertito in cantina/garage e può ospitare scaffalature ed autovetture anche di grandi dimensioni.

Costruzione in Bioedilizia Isotex con riscaldamento a pavimento a bassa temperatura in pompa di calore, impianto di condizionamento splittato caldo e freddo, autoclave, addolcitore, impianto di allarme, fotovoltaico da 6 Kw, impianto solare per sanitario solo acqua calda, predisposizione per camini, pozzo, infissi in legno di ultima generazione e zanzariere.

Soluzione ideale per chi desidera vivere in campagna e godere degli spazi aperti.

Libero da subito.

Per maggiori informazioni, chiama la nostra agenzia di Via L. A. Muratori n. 23/a a Carpi (MO) - 059.697271 - 345.2352480 e chiedi di Kevin.

Mostra tutto

Nelle vicinanze

Ricariche auto elettriche Ricariche auto elettriche
Rovereto sul Secchia Pascoli | EnelX
2,4 Km
Bar Bar
Bar Sport
2,7 Km
Ristoranti Ristoranti
L'Accento
1,8 Km
Valle Dell Eden
2,2 Km
Mostra tutto

Caratteristiche

Rif.:
61127036
Piano:
Su più livelli di 1
Totale piani:
1
Box:
1
Posti auto:
1
Camere da letto:
3
Mostra tutto
Prezzo Prezzo
€ 298.000
Rata mutuo Rata mutuo
€ 1.407 / mese
Proponi il tuo prezzoProponi il tuo prezzo
Immobile valutato con T·Valuta

Classe Energetica

A4
A4
A4
A4
A4
A4
A4
A4
A4
EP globale non rinnovabile:
8.03 kW h/m² anno
EP invernale del fabbricato:
EP estiva del fabbricato:
Anno di costruzione:
2023
Riscaldamento:
Autonomo
Tipo impianto:
A pavimento
Tipo alimentazione:
Gasolio

Ti interessa visionare l'immobile?

Fissa un appuntamento  Fissa un appuntamento

Richiedi informazioni

Clicca su Leggi per aprire l'informativa
* Questi campi sono obbligatori

Calcola il tuo mutuo

Semplice e senza impegno
Anticipo

( % )
Mutuo

( % )

pochi semplici passi

inserisci i tuoi dati
Questionario completato
Grazie per aver richiesto un appuntamento senza impegno con un nostro Consulente del Credito e Assicurativo.

Hai inserito correttamente tutti i dati necessari e a breve riceverai una e-mail con un link da convalidare per inviare i tuoi dati.
Affiliato
Agenzia Carpiuno Srl
Viale L.A. Muratori , 23/a 41012 Carpi (MO)

Il nostro staff


  • Barbara Baracchi
    Coordinatrice

  • Alice De Falco
    Collaboratrice

  • Massimiliano Botti
    Affiliato

  • Giulio Gasparini
    Collaboratore

  • Sara Mantovani
    Collaboratrice

  • Simone Setti
    Responsabile

  • Kevin Varini
    Collaboratore
Viale L.A. Muratori , 23/a 41012 Carpi (MO)
Zona: Carpi Sud - Due Ponti - Quartirolo - Cortile
Mostra su mappa
Orari: dal lunedì al venerdì 09.00-13.00 e 15.30-19.30 Sabato 09.00-13.00 - Pomeriggio solo su appuntamento.
Affiliato
Agenzia Carpiuno Srl
Viale L.A. Muratori , 23/a 41012 Carpi (MO)

2025 Tecnocasa Franchising S.p.A. - P. IVA 08365160152 - Via Monte Bianco 60/A 20089 Rozzano (MI). Ogni agenzia ha un proprio titolare ed è autonoma. Privacy policy | Policy utilizzo | Cookie policy