Villa a schiera in vendita

Carpi, Via Due Ponti - Due Ponti
€ 340.000
4 locali 4 locali
185 Mq 185 Mq
2 bagni 2 bagni

Villa a schiera in vendita

Carpi, Via Due Ponti - Due Ponti

Descrizione annuncio

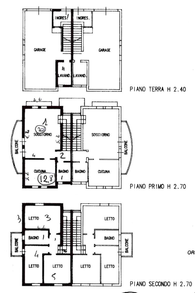
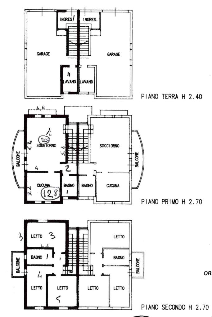
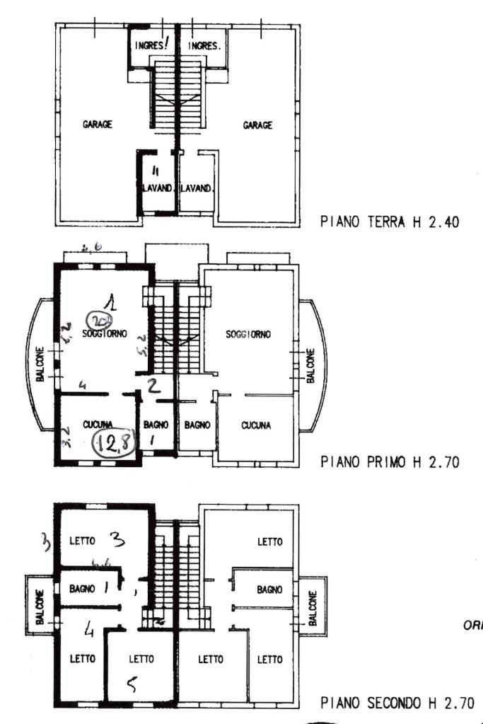
CARPI - DUE PONTI - Villa abbinata con giardino privato sui tre lati.

Disposta su tre livelli, presenta al primo piano un ampio e luminoso soggiorno con accesso al balcone laterale con affaccio sul verde, cucina separata abitabile e bagno di servizio con doccia.

La scala interna porta al secondo piano dove troviamo due camere matrimoniali, una camera singola con accesso al secondo balcone ed un secondo bagno completo di vasca.

Al piano terra è presente un garage a tutta lunghezza che può ospitare comodamente due autovetture e scaffalature oltre ad un terzo bagno/lavanderia completo di sanitari e lavatoio.

Sottotetto non abitabile raggiungibile con scala retrattile.

Costruzione di fine anni 90 in ottime condizioni. Finiture di pregio, riscaldamento a pavimento.

Posizionata in piccolo borgo, fuori dal traffico veicolare, in zona comoda al centro ed ai principali servizi.

Per maggiori informazioni, chiama la nostra agenzia di Via L. A. Muratori n. 23/a a Carpi (MO) e chiedi di Alice.

Mostra tutto

Nelle vicinanze

Trasporto pubblico Trasporto pubblico
stazione di Carpi
stazione di Carpi
460 m
Alghisi 2
Alghisi 2
300 m
Carpi Stazione FS
Carpi Stazione FS
390 m
Ricariche auto elettriche Ricariche auto elettriche
Carpi Cantina della Pioppa | EnelX
240 m
Carpi Giulio Cesare | Enel X
290 m
Carpi Carducci | EnelX
640 m
Stazione di Carpi | EnelX
680 m
Carpi Meloni Di Quartirolo | EnelX
1,2 Km
Scuole Scuole
Scuola Media Statale “Alberto Pio”
1,1 Km
Liceo Scientifico Statale "M. Fanti"
1,7 Km
Scuola Primaria Statale “Giovanni Pascoli”
1,8 Km
Istituto Tecnico Industriale Statale "L. Da Vinci"
1,8 Km
Centro di Formazione Professionale "Nazareno"
1,9 Km
Farmacia Farmacia
San Bernardino
330 m
Farmacia dell'Assunta
650 m
Farmacia del popolo
980 m
Farmacia della Salute
1,6 Km
Ospedali Ospedali
Ospedale Ramazzini
1,6 Km
Supermercati Supermercati
Supermercati
1,0 Km
Conad
1,3 Km
MD
1,9 Km
LIDL Carpi
2,1 Km
EuroSpin
2,3 Km
Bar Bar
Mattatoio
710 m
Cookies
730 m
Bar
1,3 Km
Bar Scazza 24H Non Stop
2,1 Km
Ristoranti Ristoranti
Ristoranti
790 m
Follie Di Sapori
860 m
Ristorante La Mistica
880 m
Clorofilla
1,4 Km
Lo Zodiaco
1,6 Km
Mostra tutto

Caratteristiche

Rif.:
61122205
Piano:
Su più livelli di 2
Totale piani:
2
Box:
2
Balconi:
2
Camere da letto:
3
Mostra tutto
Prezzo Prezzo
€ 340.000
Rata mutuo Rata mutuo
€ 1.605 / mese
Proponi il tuo prezzoProponi il tuo prezzo
Immobile valutato con T·Valuta

Classe Energetica

G
G
G
G
G
G
G
G
G
EP globale non rinnovabile:
222.50 kW h/m² anno
EP globale rinnovabile:
222.50 kW h/m² anno
EP invernale del fabbricato:
EP estiva del fabbricato:
Anno di costruzione:
1998
Riscaldamento:
Autonomo
Tipo impianto:
A pavimento
Tipo alimentazione:
Metano

Ti interessa visionare l'immobile?

Fissa un appuntamento  Fissa un appuntamento

Richiedi informazioni

Clicca su Leggi per aprire l'informativa
* Questi campi sono obbligatori

Calcola il tuo mutuo

Semplice e senza impegno
Anticipo

( % )
Mutuo

( % )

pochi semplici passi

inserisci i tuoi dati
Questionario completato
Grazie per aver richiesto un appuntamento senza impegno con un nostro Consulente del Credito e Assicurativo.

Hai inserito correttamente tutti i dati necessari e a breve riceverai una e-mail con un link da convalidare per inviare i tuoi dati.
Affiliato
Agenzia Carpiuno Srl
Viale L.A. Muratori , 23/a 41012 Carpi (MO)

Il nostro staff


  • Barbara Baracchi
    Coordinatrice

  • Alice De Falco
    Collaboratrice

  • Massimiliano Botti
    Affiliato

  • Giulio Gasparini
    Collaboratore

  • Sara Mantovani
    Collaboratrice

  • Simone Setti
    Responsabile

  • Kevin Varini
    Collaboratore
Viale L.A. Muratori , 23/a 41012 Carpi (MO)
Zona: Carpi Sud - Due Ponti - Quartirolo - Cortile
Mostra su mappa
Orari: dal lunedì al venerdì 09.00-13.00 e 15.30-19.30 Sabato 09.00-13.00 - Pomeriggio solo su appuntamento.
Affiliato
Agenzia Carpiuno Srl
Viale L.A. Muratori , 23/a 41012 Carpi (MO)

2025 Tecnocasa Franchising S.p.A. - P. IVA 08365160152 - Via Monte Bianco 60/A 20089 Rozzano (MI). Ogni agenzia ha un proprio titolare ed è autonoma. Privacy policy | Policy utilizzo | Cookie policy