Casa semindipendente in vendita

Carpi, Strada Provinciale 413 Romana Sud - Carpi Sud Est
€ 320.000
Prezzo aggiornato
4 locali 4 locali
174 Mq 174 Mq
2 bagni 2 bagni

Casa semindipendente in vendita

Carpi, Strada Provinciale 413 Romana Sud - Carpi Sud Est

Descrizione annuncio

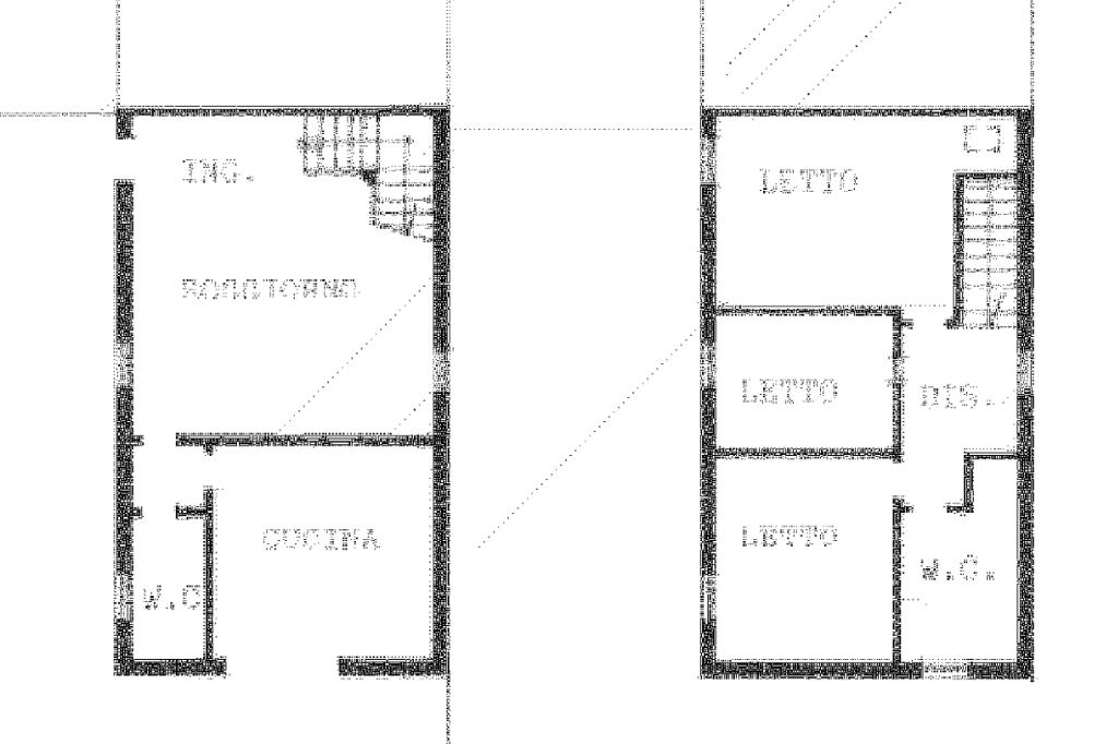
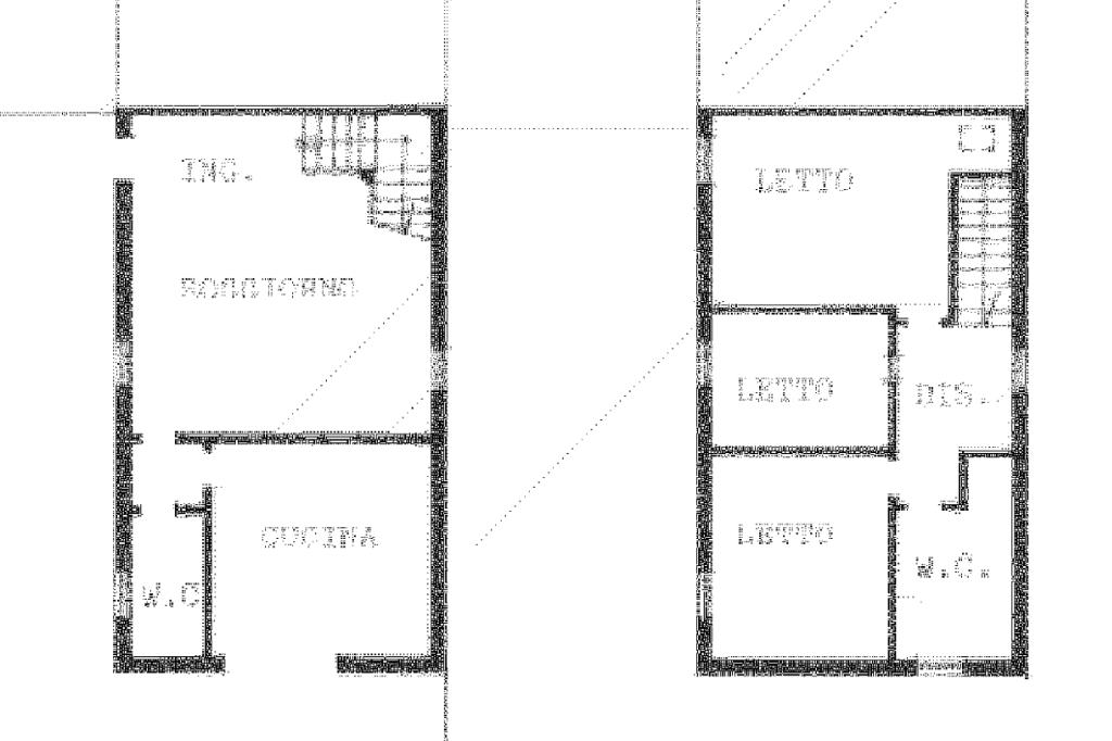
CARPI SUD - Villa abbinata con giardino privato di 300 mq. circa.

Disposta su due livelli, presenta al piano terra l'ingresso in soggiorno con termocamino, cucina separata abitabile ed un bagno/lavanderia completo di doccia.

Al primo piano abbiamo tre camere da letto, un secondo bagno con vasca ed un ulteriore stanza/studio nel sottotetto, raggiungibile da una scala a chiocciola.

L'area esterna è in parte pavimentata ed in parte a giardino con siepe perimetrale ed alte piante ombreggianti.

Situata in piccolo borgo lungo la strada che porta a Modena, questa soluzione coniuga perfettamente il desiderio di spazi verdi ed indipendenza pur non essendo completamente isolata.

Le finiture, di carattere rustico, conferiscono all'immobile il calore da focolare domestico.

Soluzione ideale per famiglie che necessitano di raggiungere sia Carpi che Soliera o Modena e che cercano spazi esterni per svago, animali domestici, o tranquillità.

Per maggiori informazioni, chiama la nostra agenzia di Via L. A. Muratori n. 23/a a Carpi (MO) - e chiedi di Sara.

Mostra tutto

Nelle vicinanze

Trasporto pubblico Trasporto pubblico
Distributore
Distributore
320 m
Gargallo Bivio
Gargallo Bivio
380 m
Ricariche auto elettriche Ricariche auto elettriche
Be Charge Le Gallerie Sicem
2,7 Km
Carpi Meloni Di Quartirolo | EnelX
2,8 Km
Carpi Piazzale Francia | EnelX
2,9 Km
Supermercati Supermercati
Supermercati
2,7 Km
Conad
2,7 Km
Esselunga
2,9 Km
Ristoranti Ristoranti
The Kiss
2,6 Km
Mostra tutto

Caratteristiche

Rif.:
61133362
Piano:
Su più livelli di 1
Totale piani:
1
Box:
2
Posti auto:
3
Camere da letto:
3
Mostra tutto
Prezzo Prezzo
€ 320.000
Rata mutuo Rata mutuo
€ 1.513 / mese
Proponi il tuo prezzoProponi il tuo prezzo

Classe Energetica

G
G
G
G
G
G
G
G
G
EP globale non rinnovabile:
220.00 kW h/m² anno
EP globale rinnovabile:
95.00 kW h/m² anno
EP invernale del fabbricato:
EP estiva del fabbricato:
Anno di costruzione:
1999
Riscaldamento:
Autonomo
Tipo impianto:
A radiatori
Tipo alimentazione:
Metano

Prezzo ridotto di €1 (6%%)

Ti interessa visionare l'immobile?

Fissa un appuntamento  Fissa un appuntamento

Richiedi informazioni

Clicca su Leggi per aprire l'informativa
* Questi campi sono obbligatori

Calcola il tuo mutuo

Semplice e senza impegno
Anticipo

( % )
Mutuo

( % )

pochi semplici passi

inserisci i tuoi dati
Questionario completato
Grazie per aver richiesto un appuntamento senza impegno con un nostro Consulente del Credito e Assicurativo.

Hai inserito correttamente tutti i dati necessari e a breve riceverai una e-mail con un link da convalidare per inviare i tuoi dati.
Affiliato
Agenzia Carpiuno Srl
Viale L.A. Muratori , 23/a 41012 Carpi (MO)

Il nostro staff


  • Barbara Baracchi
    Coordinatrice

  • Alice De Falco
    Collaboratrice

  • Massimiliano Botti
    Affiliato

  • Sara Mantovani
    Collaboratrice

  • Marta Piano
    Collaboratrice

  • Simone Setti
    Responsabile

  • Kevin Varini
    Collaboratore
Viale L.A. Muratori , 23/a 41012 Carpi (MO)
Zona: Carpi Sud - Due Ponti - Quartirolo - Cortile
Mostra su mappa
Orari: dal lunedì al venerdì 09.00-13.00 e 15.30-19.30 Sabato 09.00-13.00 - Pomeriggio solo su appuntamento.
Affiliato
Agenzia Carpiuno Srl
Viale L.A. Muratori , 23/a 41012 Carpi (MO)

2026 Tecnocasa Franchising S.p.A. - P. IVA 08365160152 - Via Monte Bianco 60/A 20089 Rozzano (MI). Ogni agenzia ha un proprio titolare ed è autonoma. Privacy policy | Policy utilizzo | Cookie policy